En Venta
3 de Febrero 700 - PH A RECICLAR
Código: 213093

3 de Febrero 700, S2000BKP Santa Fe, Argentina, Rosario, Santa Fe, Argentina.

Consultar Precio
Departamento
Compartir esta Propiedad

Descripción de la Propiedad

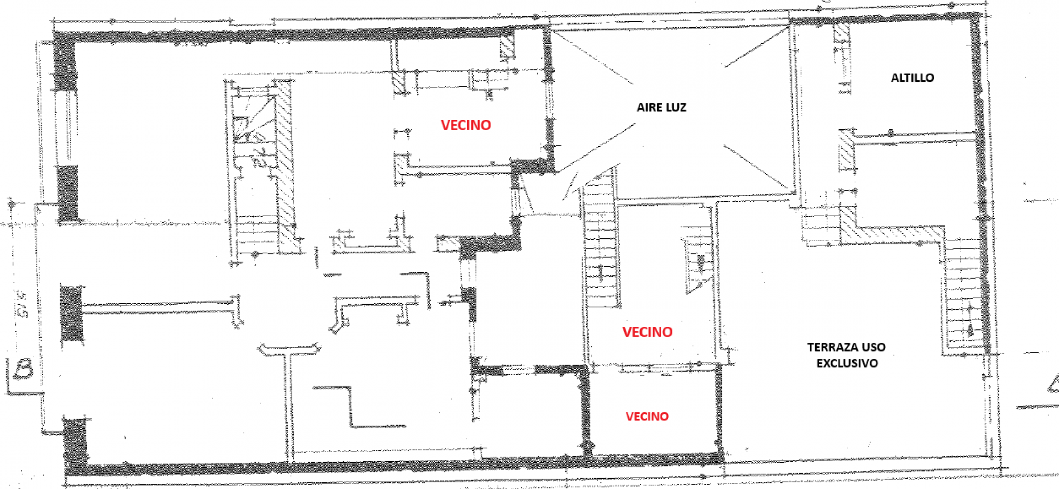
3 de Febrero 700 – PLANTA BAJA
(entre Laprida y Buenos Aires)

Departamento de pasillo en PH, 3 unidades en total
Antigüedad 60 años
Superficie exclusiva: 87 m2 + 25 m2 terraza uso exclusivo

A RECICLAR

Ingreso patio donde dan todos los ambientes hacia él
Dormitorio
Living
Baño
Cocina comedor
Por living por medio de una escalera se accede a la planta alta, altillo con toilette
Terraza de uso exclusivo

Sin servicio de gas
SIN EXPENSAS

Mas detalles
  • Balcon
  • Parrilla
  • Apto estudiantes
  • Patio
  • Comedor
  • Terraza
  • Cerca de Escuelas
  • Asfalto
  • Agua Corriente
  • Cloacas
  • Electricidad
  • Tendido Eléctrico
  • Planos aprobados
  • Apto Crédito
  • Antigüedad 60 años